Hecons Yapı by HECTA
Ana Sayfa
Kurumsal
Hakkımızda
Temel İlkelerimiz
Kurumsal
Projeler
İnşaat
Devam Eden Projeler
Tamamlanan Projeler
Elektromekanik Taahhüt
Devam Eden Projeler
Tamamlanan Projeler
Sismik İzolasyon
Blog
İletişim
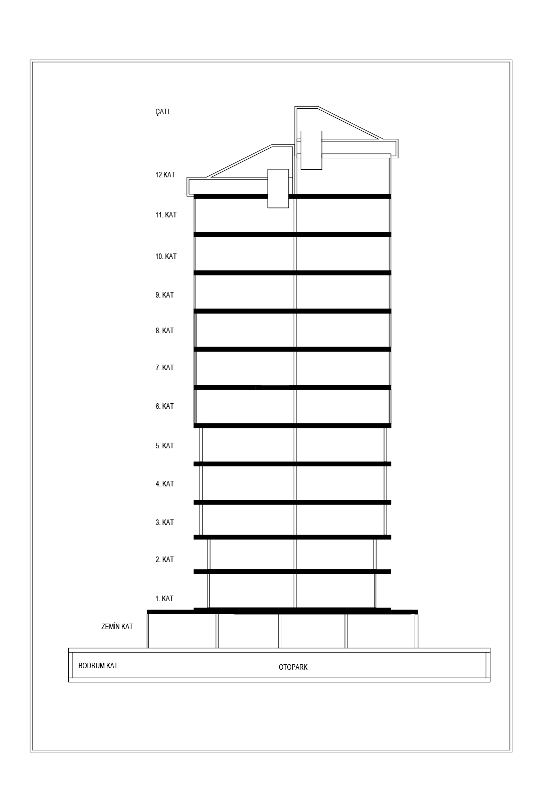
İstanbul, Erenköy
Mine Apartmanı
Projesi